

Building Plot with Full Planning Permission
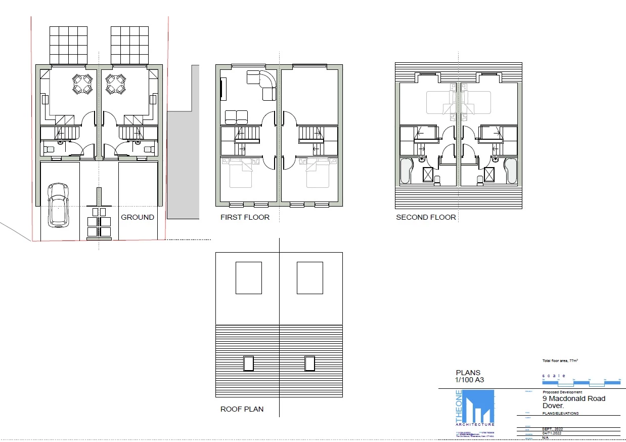
Planning for Two Semi Detached Dwellings
Two Bedroom Homes
Popular Residential Area
Convinient Location
Good Transport Links Nearby
Level Walk to Dover Town Centre
PLANNING REF: 22/01513
Call Thomas on 07970 059 561
Available Now!
Council Tax , DDC
Freehold
PLANNING PERMISSION FOR TWO 2 BEDROOM SEMI DETACHED DWELLINGS
An exciting opportunity to purchase a building plot with planning permission for two 2 bedroom semi detached homes. Situated within a level walk of the centre of Dover with its range of amenities including shopping, educational and recreational facilities together with the Docks and seafront offering regular ferry crossings to The Continent and within easy access of the St James' Retail Park. The plot is on the main bus route and there are several primary and secondary schools are dotted around the town. The nearby A2 dual carriageway offers a fast connection to the Cathedral City of Canterbury. Dover Priory mainline railway station offers excellent fast speed connections to the capital.
PLANNING REF: 22/01513
Contact Thomas directly on 07970 059 561.
IMPORTANT NOTICE FROM THOMAS AND PARTNERS
Descriptions of the property are subjective and are used in good faith as an opinion and NOT as a statement of fact. Please make further specific enquires to ensure that our descriptions are likely to match any expectations you may have of the property. We have not tested any services, systems or appliances at this property. We strongly recommend that all the information we provide be verified by you on inspection, and by your Surveyor and Conveyancer.