

No Onward Chain
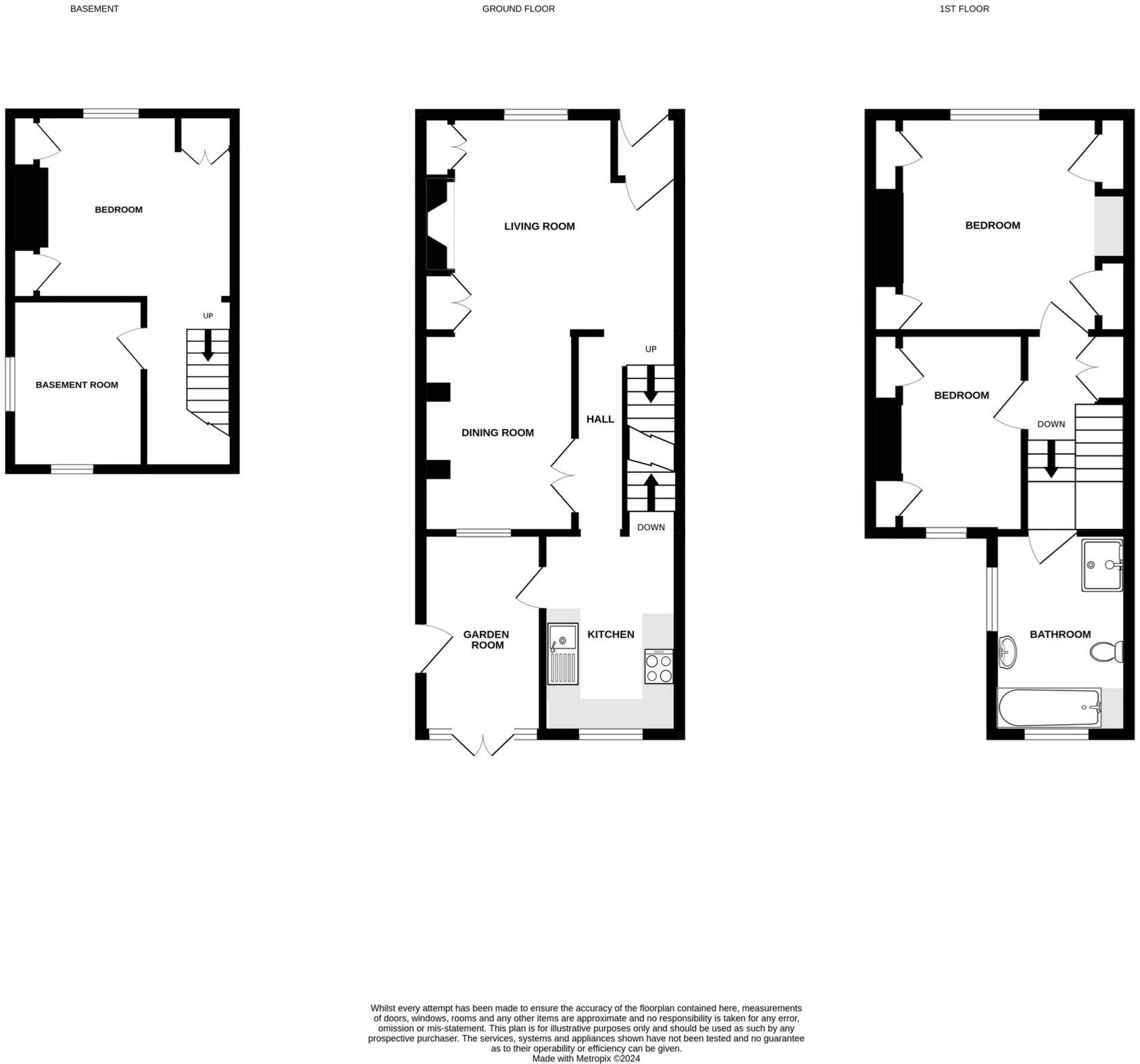
Arranged Over Three Floors
Three Bedrooms
Generous Living/Dining Room
Modern Fitted Kitchen
Separate Garden Room
Fitted Storage in All Bedrooms
Large Family Bathroom
Basement Level
Enclosed Rear Garden
Council Tax , DDC
Freehold
Set within a sought-after location of Deal, this delightful three bedroom family home is offered with no onward chain. Arranged over three floors, this attractive property is accessed via an inner porch opening into a generous living/dining room leading to the modern fitted kitchen which has a range of matching units and access to the separate garden room which opens to the rear garden. To the first floor, there are two double bedrooms which both have useful fitted storage, together with a large four piece family bathroom accessed via the split level flooring. Furthermore, the property has a basement level which has a further bedroom and a basement room. Externally, this wonderful home enjoys an enclosed, low maintenance courtyard garden which is the perfect space for alfresco dining in the summer months. Situated within the heart of the desirable town of Deal with an excellent range of independent shops, weekly markets, two Castles, wonderful architecture and a quarter mile long Pier affording views of the historic seafront. Deal came first in the Daily Telegraph's 10 top spots to lay your beach towel and was praised for being the 'genuine Georgian article'. The property is within walking distance of the seafront and mainline railway station providing regular services to Dover, Thanet & the fast speed connection to London St. Pancras.
IMPORTANT NOTICE FROM THOMAS AND PARTNERS
Descriptions of the property are subjective and are used in good faith as an opinion and NOT as a statement of fact. Please make further specific enquires to ensure that our descriptions are likely to match any expectations you may have of the property. We have not tested any services, systems or appliances at this property. We strongly recommend that all the information we provide be verified by you on inspection, and by your Surveyor and Conveyancer.