

New Build Development
First Floor Apartment
34 Luxury Residences
High-Specification & Contemporary Design Features
Open Plan Living Area
Stylish High Quality Kitchen
Sleek Modern Bathroom
Heat Recovery System & Lift Access
Allocated Parking & Bike Store
Walking Distance to Canterbury City Centre
Leasehold
999 Lease Years Remaining
Ground Rent £250 per annum
Service Charge £1,950 per annum
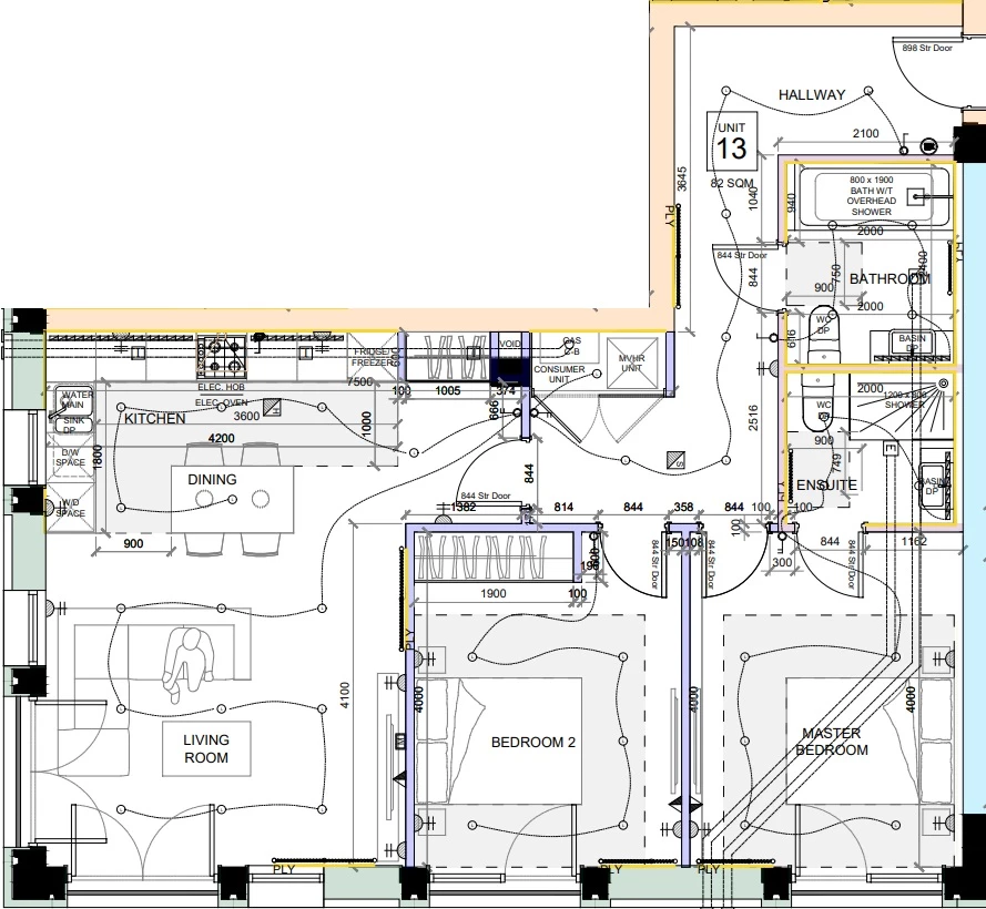
UNIT 13 - NEW LUXURY APARTMENTS IN THE CITY OF CANTERBURY!
Set within the prestigious Cathedral City of Canterbury, this stunning new build, first floor apartment is nestled within a brand-new block of 34 luxury residences which are arranged over four floors. Enjoying high-specification and contemporary design features, the apartment is positioned in a prime location and within walking distance to the heart of Canterbury with its wide range of high street shopping, restaurants, nightlife and entertainment including the well-respected Marlowe Theatre. The spacious, modern apartment offers an open plan living area, a sleek fitted kitchen with an extensive range of units and high-quality integrated appliances. Furthermore, there are two well-proportioned bedrooms together with a stylish bathroom. The city of Canterbury is sought after with its rich heritage and extensive range of amenities. Canterbury East & Canterbury West Mainline Railway Stations provide links to London, Ashford, the coastal towns of Dover, Folkestone, Broadstairs & Margate and the high-speed rail connection to London St Pancras in just under one hour. Ashford International Station and the Channel Tunnel at Folkestone are approximately 14 miles away and provide regular Eurostar and shuttle services to the continent, whilst the A2/M2 motorway provides good access to both London and the Channel port of Dover. The city has an excellent bus service to all surrounding towns; the nearest seaside town is Whitstable which offers an array of independent shops and cafes in the bustling old high street and a selection of eateries, market stalls & ice cream parlours on the harbour.
IMPORTANT NOTICE FROM THOMAS AND PARTNERS
Descriptions of the property are subjective and are used in good faith as an opinion and NOT as a statement of fact. Please make further specific enquires to ensure that our descriptions are likely to match any expectations you may have of the property. We have not tested any services, systems or appliances at this property. We strongly recommend that all the information we provide be verified by you on inspection, and by your Surveyor and Conveyancer.