

Planning Permission Granted!
Small Existing Stables
Desirable Area
Secluded In A Quiet Country Lane
East Of The Popular Village Of Minster
Easy Access To The A299
Reference Number F/TH/21/0879
Further developement potential.
Freehold
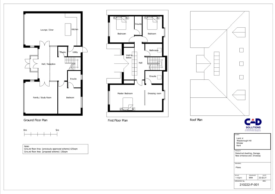
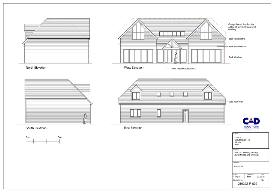
Coming onto the market with Thomas & Partners in Minster, you have this spacious piece of land with planning permission already granted! The proposed use was for the erection of a detached, two storeys, three bed dwelling with a garden and parking, following the demolition on the small existing stables on the land. For further details, please refer to the reference number (F/TH/21/0879) through, Thanet District Council. Secluded in a quiet country lane, this home is to the East of the popular village of Minster. You'll find local shops, the village schools, restaurants and pubs as well as a mainline rail station direct to London and the Kent coast, furthermore, Easy Road access is granted via A299 (Thanet Way which links to the M2). The A256 links to the Cinque Port of Sandwich and the A20/M20 at Dover
IMPORTANT NOTICE FROM THOMAS AND PARTNERS
Descriptions of the property are subjective and are used in good faith as an opinion and NOT as a statement of fact. Please make further specific enquires to ensure that our descriptions are likely to match any expectations you may have of the property. We have not tested any services, systems or appliances at this property. We strongly recommend that all the information we provide be verified by you on inspection, and by your Surveyor and Conveyancer.